For some following my thread elsewhere may have seen we're about to build a house over here in Spain. The plot is going to be pretty rural with loads of views of the mountains, and so an open plan, build with decent window views is the main plan.
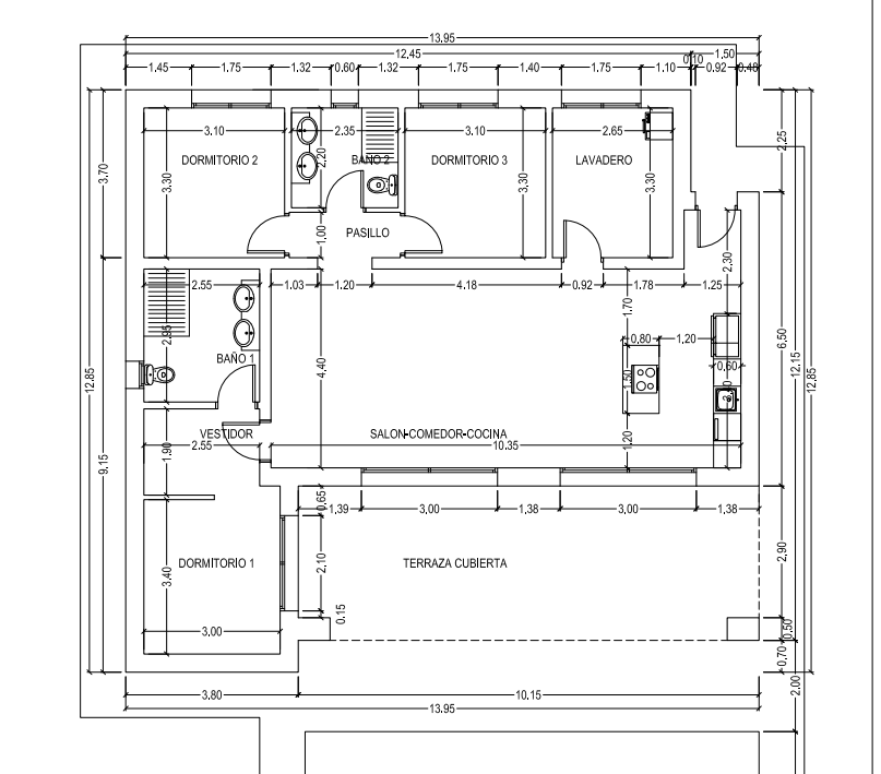
After chats with a local developer, we decided on this build. He had around 6 "standard" house models and this fit our needs in terms of size/cost/layout. However we added the laundry to the top right, and switched the front door from where it is in this picture to the back of the house as seen on the floorplan
We were really happy with this, but now it's getting to the crunch time of signing the forms we're having some doubts.
Main concerns
1) Due to the large windows in the front room/kitchen, it doesn't offer a suitable location for a pellet burner. I like the idea of it on the wall inbetween the 2 windows, but my wife wants it in the top left corner alongside the TV. To me this cramps loads of things into one corner of a big room, but i can see the appeal of being snuggly on a sofa watching fire
2) The door to bedrooms 2/3 is in the middle of the seating area. Dormitorio 2 is going to be my office. This means that every time i want a drink/general skive, i'm going to be walking in front of my wife on the sofa. It also puts the sofa miles from the TV
The above are pretty much it for our "issues" with the plan and they both stem from the same thing.
Possible thoughts/changes
Replace the left patio door with a wall up to midway and then have a 1.5 / double sized bifold door on the kitchen side. This creates extra wall space, the tv could then go on this wall if needed with the sofa backing to the bedroom entrances
Steal a bit from bedroom 3, put the entrance to the bedroom "Pasillo" where the bedroom 3 door is
Put the kitchen units along the right side wall. This opens up loads of wall space. In fact he sent me a floorplan suggestion with exactly this
Other Notes to make
We like the bedroom 2/3 separate from the main bedroom, some layouts put them all in a row, but we like them separated.
We're unlikely to have a dining table as per the top floorplan. We'll have a nice outdoor table on the terrace and otherwise will eat at the island/sofa. A table just annoys the wife as i use it as a dumping group for stuff!
The general dimensions of the above layout work for us, we want single floor living and nothing too big as it's only the 2 of us. I'll also be adding a ~50m2 garage as a home gym/music room
The exterior of the house isn't 100% to our tastes, it's very possible that we finish it like this
So to you lovely lot. What changes would you make if you had the choice with no restrictions? Also what's the best/easiest floorplan/rendering tool i can have a play around with?
After chats with a local developer, we decided on this build. He had around 6 "standard" house models and this fit our needs in terms of size/cost/layout. However we added the laundry to the top right, and switched the front door from where it is in this picture to the back of the house as seen on the floorplan
We were really happy with this, but now it's getting to the crunch time of signing the forms we're having some doubts.
Main concerns
1) Due to the large windows in the front room/kitchen, it doesn't offer a suitable location for a pellet burner. I like the idea of it on the wall inbetween the 2 windows, but my wife wants it in the top left corner alongside the TV. To me this cramps loads of things into one corner of a big room, but i can see the appeal of being snuggly on a sofa watching fire
2) The door to bedrooms 2/3 is in the middle of the seating area. Dormitorio 2 is going to be my office. This means that every time i want a drink/general skive, i'm going to be walking in front of my wife on the sofa. It also puts the sofa miles from the TV
The above are pretty much it for our "issues" with the plan and they both stem from the same thing.
Possible thoughts/changes
Replace the left patio door with a wall up to midway and then have a 1.5 / double sized bifold door on the kitchen side. This creates extra wall space, the tv could then go on this wall if needed with the sofa backing to the bedroom entrances
Steal a bit from bedroom 3, put the entrance to the bedroom "Pasillo" where the bedroom 3 door is
Put the kitchen units along the right side wall. This opens up loads of wall space. In fact he sent me a floorplan suggestion with exactly this
Other Notes to make
We like the bedroom 2/3 separate from the main bedroom, some layouts put them all in a row, but we like them separated.
We're unlikely to have a dining table as per the top floorplan. We'll have a nice outdoor table on the terrace and otherwise will eat at the island/sofa. A table just annoys the wife as i use it as a dumping group for stuff!
The general dimensions of the above layout work for us, we want single floor living and nothing too big as it's only the 2 of us. I'll also be adding a ~50m2 garage as a home gym/music room
The exterior of the house isn't 100% to our tastes, it's very possible that we finish it like this
So to you lovely lot. What changes would you make if you had the choice with no restrictions? Also what's the best/easiest floorplan/rendering tool i can have a play around with?
