Hello.
I'm having an extension to the back of my house built which has taken about 2yrs to get underway, and thought it might be fun to document it somewhere. I considered cutting a youtube video together, and then wondered whether I would actually follow through with that, and this is meeting my own brain halfway.
This is the back of the house. The crappy dirt area used to be a load of rotten decking that I've taken away, along with around 36 rubble sacks of smashed up patio.
On the left of the photo is the kitchen, and the right of the photo is the dining room.
The plan is to knock down that lean-to which forms the end part of my kitchen, making the two sides level again, and to extend out 2.5m from the house, and across the width (which is around 6.5m).
From there, we'll then knock down the internal (load-bearing) wall separating the kitchen and dining room, creating a larger open space, and using some of the wall that's left to form a partition for a small utility room for washing machine / tumble dryer.
We will then move the kitchen from the left side of the house to the right, and use the length of that wall to put cabinets.
The existing house plan looks like this:
We will be altering the layout to be like this:
We'll have four large bits of steel going in to the house to replace the load bearing wall, and we've had a structural engineer do all the calculations to ensure that everything is supported as it should be.
We also have a chimney breast on the exterior wall of the dining room and first floor bedroom which will need to be removed so that the kitchen can sit flush against the wall.
If people are interested in the process of me getting to where I am at the moment (build beginning), then I'm happy to answer.
I'm having an extension to the back of my house built which has taken about 2yrs to get underway, and thought it might be fun to document it somewhere. I considered cutting a youtube video together, and then wondered whether I would actually follow through with that, and this is meeting my own brain halfway.
This is the back of the house. The crappy dirt area used to be a load of rotten decking that I've taken away, along with around 36 rubble sacks of smashed up patio.
On the left of the photo is the kitchen, and the right of the photo is the dining room.
The plan is to knock down that lean-to which forms the end part of my kitchen, making the two sides level again, and to extend out 2.5m from the house, and across the width (which is around 6.5m).
From there, we'll then knock down the internal (load-bearing) wall separating the kitchen and dining room, creating a larger open space, and using some of the wall that's left to form a partition for a small utility room for washing machine / tumble dryer.
We will then move the kitchen from the left side of the house to the right, and use the length of that wall to put cabinets.
The existing house plan looks like this:
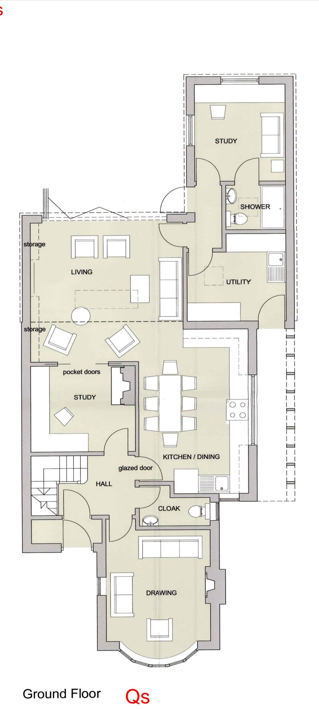
We will be altering the layout to be like this:
We'll have four large bits of steel going in to the house to replace the load bearing wall, and we've had a structural engineer do all the calculations to ensure that everything is supported as it should be.
We also have a chimney breast on the exterior wall of the dining room and first floor bedroom which will need to be removed so that the kitchen can sit flush against the wall.
If people are interested in the process of me getting to where I am at the moment (build beginning), then I'm happy to answer.



