- Joined
- 25 Nov 2009
- Posts
- 5,392
Well the boiler selector suggested an 837 exclusive I guess I made some false assumptions... I think the 831 could be a safe bet.
Well the boiler selector suggested an 837 exclusive I guess I made some false assumptions... I think the 831 could be a safe bet.
Cheaper is not always the best option.
always used Valliant.
7 years warrant for the Valliant 831.
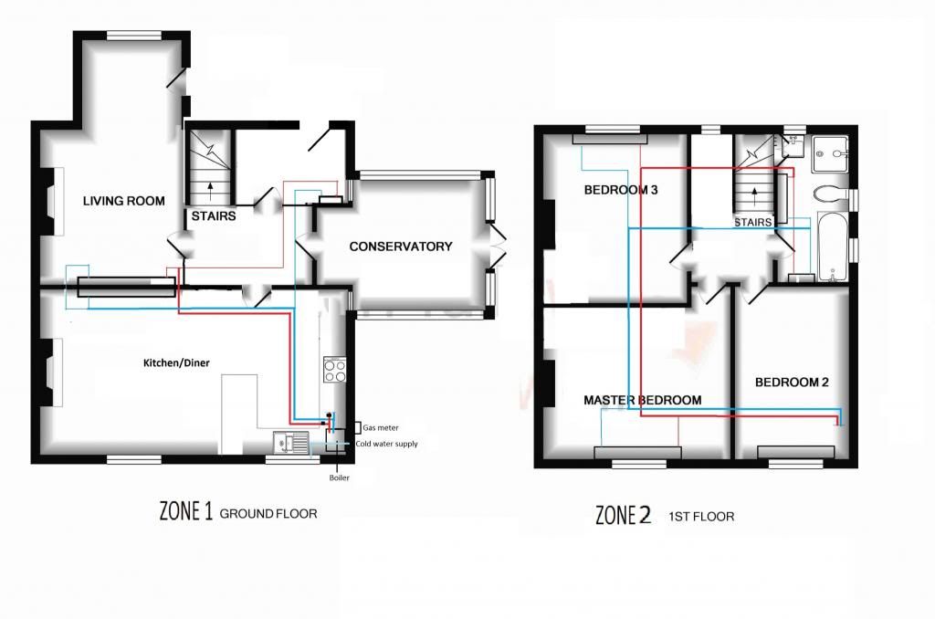
Last week we had our old back boiler replaced, sounds like the same setup you have. It was a Baxi back boiler with a (hideous) fire place in front, hot water tank upstairs and tanks in the loft.
We've had a combi boiler fitted in the airing cupboard upstairs where the old hot water cylinder was. All that was done was all the old stuff ripped out and the boiler connected to exsisting pipework that ran up there, and a new gas pipe up.
All the rads had thermostatic valves fitted and were each removed to be flushed out (had barely been touched for 40 years!). Although it runs under pressure there's no reason why it should be a problem. Think we paid £2100 all in which I don't think is too bad all in all.