Replacing my back boiler/central heating system

Here's rev.2

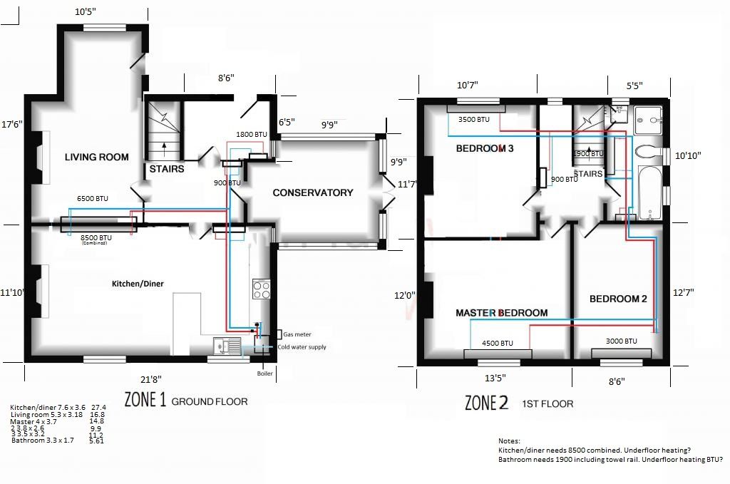
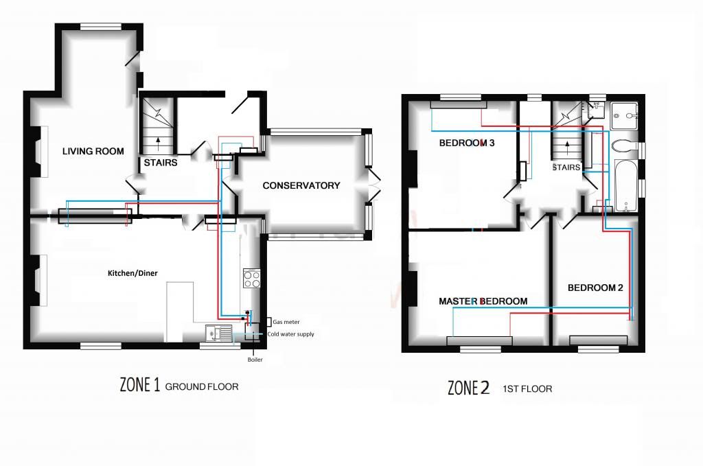
I've added another radiator in the kitchen/diner and also I've put two in the hall ways too, I'll need to get BTU calcs done to check the 831 still has enough grunt.

I'll see what she wants to do with the conservatory, wall space is very limited though so it may have underfloor heating if any.

Heatingfloorplan_zps221bedb5.jpg

On the hot water side, is there simply one outlet that I just t-off to each tap?

Also, is it worth lagging all of the pipework?
 
Last edited:
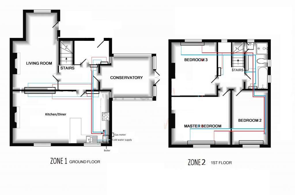
Looks excellent, but Zone one 1, you don't need 22mm in kitchen/dinner then other side of wall another 22mm for living room, good idea putting radiators in hallways.

I would remove the 22mm in kitchen/diner, use the 22mm hallway to tee off from, & why a loop on blue 15mm between kitchen diner & living room?

831 should be ok for around 15 radiators.
 
Last edited:
Thanks for that, I'll print it out and go for a wander, see what prices I can get all of the bits for. [you and your stealth edits! :D]

As mentioned earlier, I intend to do all of the pipework and rads + remove the old system and then get a plumber to come and fit the boiler. Would buying the boiler myself be a bad idea ie. should I just let the plumber do that bit? Or am I likely to get hold of a plumber that will just fit all of my own parts?
 
Last edited:
Perfect.

Spot on.:)

In bedrooms 2 & 3 you could stop BLUE 22mm at same point as RED 22mm & reduce down to 15mm.
And the same in living room, show your plumber & see if he agrees.
 
Last edited:
And clip the pipes where necessary, nothing worse than rattling pipes.

No, idea as to scrap valve for copper, don't leave lying around, it will soon walk.
 
Yes of course :)

Still toying with the idea of plastic... Mr Central heating have recommended it too with copper tails for each of the rads.

Obviously it'd be cheaper to drop down to 15mm where you mentioned but are there any downsides?
 
Last edited:
Downsides?

Trouble is your plan isn't to scale, so I have no idea as to length of run from where you tee off the 22mm to radiator in 15mm which might be 300mm or 3000mm

Have worked in plastic pipe, but I'm old school, prefer copper, but with plastic you need the proper pipe cutter to get a clean cut, you can't use a hacksaw, other wise you may damage the fitting & get leaks.

You want good radiators, Screwfix Kudox Premium, they come with a 15 year warranty, superb radiators.
 
Last edited:
Rev.6!

I've added dimensions (metric noted in the bottom left with floor space in m^2) also I added the on-line calcs for BTU requirements :)

Considering doing away with the smaller rad in the kitchen and also the small rad/towel rail in the bathroom and going for electric underfloor heating.

Heatingfloorplanincrads_zps9ebfed43.jpg
 
Back
Top Bottom